
Introduction to the Dwight T. Parker Public Library Expansion Project
It is the sense of community that makes Fennimore special. We live, work and play in a wonderful place. We care for our neighbors. But the Library building does not currently reflect this sense of community pride. We want the library to be the place where people of all ages feel welcome – a place to learn, gather and connect – the heart of our community.
The current Library building is located on the National Register and is a beautiful building. But, with only 3,850 feet, it is totally inadequate for our needs now, nor will it allow us to grow our collections or programming. We want a library that is people-focused, flexible in space and furnishings, tech-rich in service and building design, community centered, and sustainable in design and operation.
Donations for the Fennimore Dwight T. Parker Public Library Addition and Renovation may be made here: Online Donations
Frequently Asked Questions (Click a topic for more information)
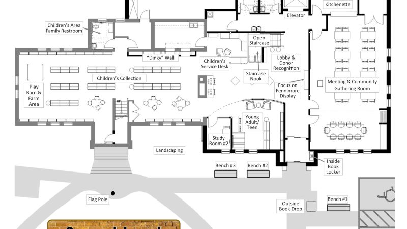
What will the renovated and expanded Library be like?
First, the historic nature of the existing Library will be preserved, and the expansion will reflect and complement its architecture. By expanding the existing Library, rather than building new, the community-centered location will also be retained.
The expansion will add approximately 7,360 square feet, nearly tripling the Library’s floor space, and make the entire space Americans with Disabilities Act (ADA) compliant.
The additional space will include an expanded adult and children’s collection, a teen space for the young adult collection, a meeting room large enough for 50 people and a multi purpose conference room for public use. It will offer all community members improved broadband and Wi-Fi access, more desktop and laptop computers as well as three private rooms for work, education and healthcare consultations.
Please also see images of the expansion included at the end of this page.
How did this whole expansion/renovation project come about?
A centerpiece of Fennimore, and listed on the National Register of Historic Places, the Dwight T. Parker Public Library was a gift to the city from Mr. Parker, and opened in 1924. Fennimore was a smaller place then, and the needs and services of a community Library have changed dramatically in 100 years.
In that regard, over the last couple of years, the Library Board has wisely invested monies received through donations to plan a significant renovation and expansion. FEH Design (more on them below) was hired in 2023 to help Fennimore citizens choose and develop a plan suitable for the community.
In the Spring of 2024, the Library became aware of a large grant offered by the Wisconsin Department of Administration Flexible Facilities Program funded through the U.S. Department of Treasury Capital Projects. A team of experienced volunteers submitted a competitive application for Fennimore, winning a $4,250,000 grant in a very competitive process.
What will the Library project cost and who will pay for it?
The budget for the renovation and expansion is $5,750,000. $4,250,000 is provided by the grant. $300,000 has been committed by the City of Fennimore, and $450,000 was secured through library reserves and donations raised before the grant was won.
The final piece of funding will come from the $750,000 fundraising campaign. The Library is soliciting donations from local residents – both current and past, businesses, organizations and other library enthusiasts who want to support the project.
Are libraries really needed in the age of technology?
Libraries are more vital and necessary than ever! Studies show that public libraries experience an increase in usage when their libraries have been expanded and renovated. This includes both materials checked-out and program attendance, even while technology is more and more available in homes. Particularly in difficult economic times, libraries ‘level the playing field’ – offering all people equal access to the tools they need to stay informed, educated and connected.
How will the expanded Library use technology?
The project will increase the number of computers from four to twelve, including both desktop stations and portable laptops. A self-checkout kiosk will enhance efficiency. The Library will be monitored from the circulation desk using closed-circuit cameras and entrance chimes. Wi-Fi will reach surrounding streets at all times and have visible signage indicating access so that patrons can also work outside when the Library is closed.
How will the Library partner with local business, community organizations and the community?
The Library staff will request input from local organizations on how the Library can support their needs. This includes making the meeting rooms available, and promoting events on the Library’s website, Facebook page, newspaper column, and local bulletin boards. The expansion is designed so that the large meeting room will be available for use after library hours, providing collaborators flexibility in offering programming. All meeting rooms can be reserved through an online reservation system.
Is the expansion economically sustainable?
The annual operating budget will only increase 15-16% including one additional part-time staff member. The Library anticipates an increase in circulation, yielding a higher county reimbursement level. Budget information has been shared with the city for planning purposes. Solar panels will also reduce utility costs. An endowment is being established that will help the Library with acquisitions and program support – details are pending at this time.
How will donors be recognized?
Donors over $1,000 will be recognized by name on a plaque positioned prominently in the Library. Donors of $2,500 or more will also have smaller name plates placed at the location for which their donation was dedicated.
Naming opportunities are subject to the approval of the Library Board and will remain in effect for at least the useful life of the item, generally 20 years or more. Naming opportunities for gift levels are subject to availability and may change as donations are made and naming opportunities are committed.
Smaller donations and new donations will be scrolled on the Library’s current event monitors, located at the reception desks on each floor for a period of time.
You may view the following document for more information: Donor Recognition
How can I donate? Do you need my donation right away?
No. But we do need your pledge to donate as soon as convenient so we can continue with planning and budgeting. For budgeting or tax purposes, your gift may be divided over different calendar years. Agreements to make a gift are binding, as the monies from your gift will be committed to the project.
Transaction fees will be applied to your online payment. If you want Dwight T. Parker Public Library to receive 100% of your donation, please pay by mailing a check to the library.
Learn more about the 100 Extraordinary Women Initiative
View and download the Donation Form
You may also choose to Donate Online
What if the Library raises more money than needed for the project?
Any monies raised in addition to those needed for the project will be applied to the Library’s planned endowment. Agreed upon naming opportunities will be honored.
Is my gift tax deductible?
Yes. The Fennimore City Attorney states: “The Federal Internal Revenue Code provides that a contribution or a gift to a political subdivision [like the city of Fennimore] is tax deductible [and that] a gift of money or property…to be used for the construction of a new library building is tax deductible.”
The Library will provide you a letter documenting your gift for tax purposes. It will include the applicable EIN number for tax purposes.
Who’s advising and doing the work?
The Library Board has contracted with FEH Design to design, bid and oversee the construction of the Library project. They will also be responsible for grant administration duties.
FEH Design, with multiple offices in the Midwest, has been in business for over 100 years. They specialize in public use buildings like schools, hospitals, and libraries. Completed library projects in southern Wisconsin include Lancaster, Belleville, Milton and Lake Geneva.
Fundraising leadership is provided by Jodi Sweeney from the Sweeney Group of Madison, Wisconsin. The Sweeny group assists not-for-profit organizations, like libraries, with their capital campaigns. In recent years they have completed 21 successful library campaigns; each raised or exceeded the campaign goal. These successful fundraising campaigns included Milton, Lancaster, Lake Genva, Benton, and Prairie du Chien libraries.
For more information, please view the FEH Design Overview.
Is there a chance the $4.25 million grant from the grant will be rescinded?
There is no indication that this is a concern. Our contact at the Wisconsin Department of Administration states: “At this time the State does not anticipate, and has not been informed by [US] Treasury of any expected changes to, or termination of, our agreement with Treasury.”
Additional Information:
Even given its current size limitations, the Library is very well-used. It has 654 registered resident users and 320 nonresident users. Circulation of checked out materials exceeded 27,000 in 2024. There were more than 11,000 individual visits to the library last year, including 75 programs with multiple attendees. There are only four public computers but they are in near constant use. The historic collections in the Fennimore Room were accessed 185 times. There were over 3,200 website visits. When other communities have upgraded their libraries, usage in every category has increased dramatically.
Our priorities include:
- Barrier free access for everyone
- Access to technology with high-speed internet
- Preservation of our beautiful historic building
- Space for public use gatherings
- Private space for work, education and healthcare consultations.
- Youth, teen and adult programming
- Collections that best serve Fennimore
- Support for educational partnerships
- Space for local history collections
- A place that reflects Fennimore’s sense of belonging and pride.
Some people think that with the growth of the internet, libraries are becoming a thing of the past. Nothing could be further from the reality of libraries today. All across America, libraries are on the cutting edge – always finding new ways to add value to the community and create a better quality of life.
Libraries are equal-access institutions: all members of the community can come without cost to access materials, acquire information, learn new skills, and gather together. Libraries also play an integral role in fostering lifelong learning, civic engagement, and fighting disinformation. Libraries embrace progress, reaching beyond known solutions and formats while bringing people and information together.
Libraries level the playing field to assure that all may reap the benefits of knowledge and education. Libraries of the 21st century are versatile, dynamic organizations that continually change to meet new demands and provide up-to-date materials, programs, services, and opportunities to people of all ages and backgrounds, connecting people with the resources they need.
To understand what is possible in a contemporary library, it is important to know what is happening in forward-thinking public libraries across Wisconsin and the country right now. There are many major shifts ongoing in public libraries: libraries are moving away from a passive environment to an active environment, users are moving away from studying to learning in a collaborative way.
Library staff are changing from providers to coaches, and resources are changing from physical objects (books) to digital and virtual collections. Library technologist Joan Frye Williams said “public libraries need to be less like grocery stores and more like kitchens”.
Libraries are shifting away from being a place of consumption (where you get stuff) to a place of creation (where you do stuff). The impact to the physical space in a library is often fewer physical materials on shelves and more places designed to create content.
Though we will never eliminate books, our Library can be so much more! Social gathering is a very important part aspect of a healthy community and libraries are fast becoming places to gather and interact in a neutral environment. This is what we want for Fennimore; we are being thoughtful and strategic about what we need and what we can afford.
It is now very clear that our Library needs to grow to keep up with the needs of the community and the expanding roles of libraries in the 21st century. The Library is one of Fennimore’s most important assets and we want it to be the best it can be.
We are at a historic moment where bold thinking will determine Fennimore’s future. The Library project is an opportunity to pay it forward and create a place that strives to bring people together for common goals, beckons newcomers, fosters the growth of our youth, and enriches the lives of our mature citizens.
Please join us! Dwight T. Parker’s original gift to the community has lasted a century.
Your gift will help the Library prepare for its next 100 years.




